Capannone industriale 1.000 mq in Vendita a Borgoricco Z.I.
Rif.Borgor cap.ne 1000 | 1000 mq | € 700.000
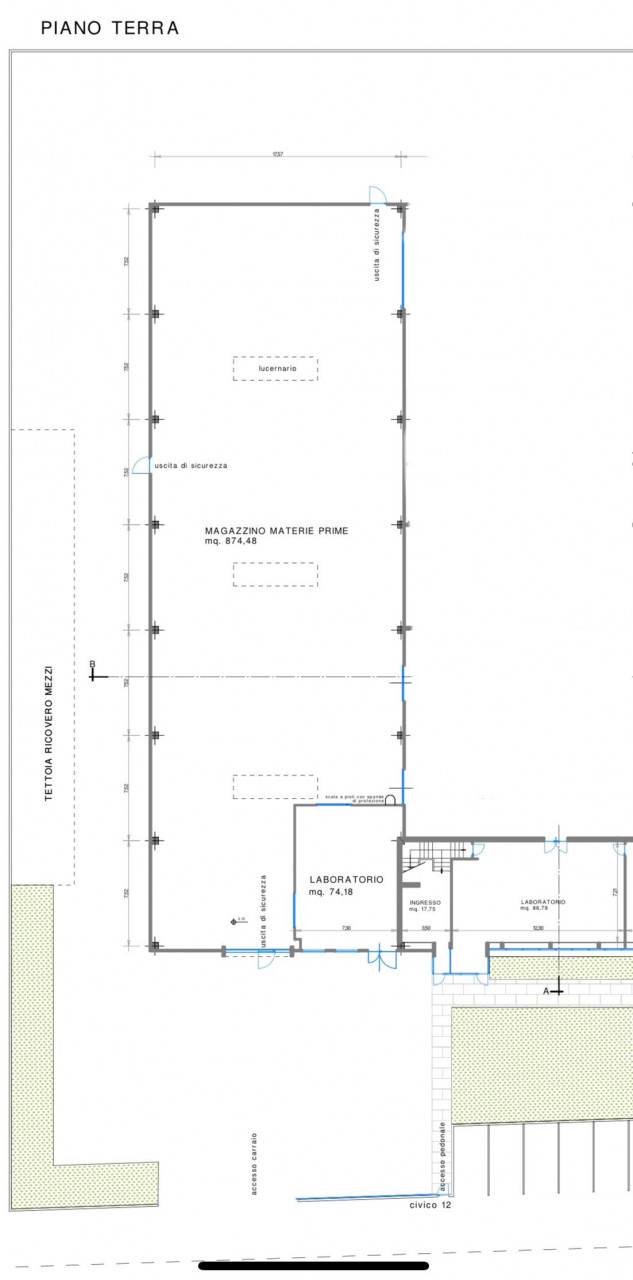
Descrizione
In posizione strategica nel cuore della zona industriale di Borgoricco, lungo la rinomata via Dell'Industria, proponiamo in vendita un'eccellente porzione laterale di capannone industriale in categoria D7 attualmente utilizzato come magazzino.
Questo immobile si estende su una superficie totale di circa 1000 mq più uffici e accessori e risulta facilmente raggiungibile grazie alla sua prossimità alla strada statale 308 con svincolo dedicato di Borgoricco.
Il capannone è caratterizzato da dimensioni generose di circa 50 metri di profondità per 20 metri di larghezza più uffici e bagni ben strutturati sviluppati su 2 piani. La proprietà viene venduta con impianti autonomi a norma e offre un'altezza sotto trave pari a 6,10 m, garantendo così ampi spazi per qualsiasi tipo di stoccaggio materiale. E' dotato di un anello tagliafuoco con vasca di raccolta delle acque, inoltre è presente una tettoia esterna nel lato ovest del capannone ideale per il parcheggio dei veicoli dei dipendenti o fornitori.
Il capannone è costruito interamente in cemento, assicurando durabilità e stabilità nel tempo. Gli ambienti sono luminosi grazie alle aperture sul tetto che favoriscono l'ingresso della luce naturale e non presentano colonne che possono ostacolare la libera circolazione interna dei mezzi da lavoro.
La consegna potrebbe avvenire anche in tempi brevissimi! Questa soluzione rappresenta un'opportunità unica e introvabile sul mercato immobiliare locale ad un prezzo competitivo di €700.000,00 .
Non perdere questa occasione irripetibile! Per ulteriori informazioni o per prenotare una visita dell'immobile contatta l'Agente Immobiliare Marco Garbin al numero 0499301718 h.u.
Dettagli
| Anno di costruzione: | 1974 |
| Prezzo: | € 700.000 |
| Esposizione: | nord, sud, ovest |
| Metri quadri: | 1000 mq |
| Classe energetica: |
I.P.E. 184,40 kWh/m3 anno |
Comfort: | |
| Comune: | Borgoricco |
| Indirizzo: | Via dell'Industria |













